SoundView Services

The Studios

A fully-equipped, independently-owned, 60,000 sq. ft. global television broadcasting, production, post-production and media marketing company based in New York City.

State-of-the art broadcasting, distribution, production, post-production, and media management facilities and services for broadcasters, TV channels, producers, and production companies from around the world.

Media services for over 26 international television channels from around the world to audiences across North America, Europe, and the UK.

A USA launchpad for fledgling and long-established international and ethnic TV channels venturing into new markets.

Studio 1A

Green Screen Virtual Set

  • 360° Green Screen
  • Live Broadcasting Capability
  • 25' x 33' (825 sq. ft.)
  • 10' height to grid
  • 100 AMP available power
  • Fully Air-Conditioned

Studio 1B

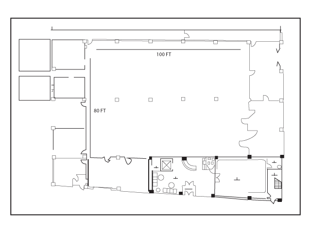
Live Broadcast Studio & Event Space

  • 76' x 105' (7,980 sq.ft.)
  • AMP available power
  • Designed for large-scale events
  • Fully Air-Conditioned
  • Live Broadcast Capable

Studio 2A

Primary Broadcast Studio

  • 29’ x 62’ (1,798 sq.ft.)
  • 10' height to grid
  • 150 AMP available power
  • Fully Air-Conditioned
  • Live audience capacity of 150
  • Perfect for weekly series & special events

Studio 2B

Virtual Green Screen Room

  • Ideal for news broadcasts and interviews
  • 19' x 33' (627 sq.ft.)
  • 10' height to grid
  • 100 AMP available power
  • Fully Air-Conditioned

Studio 3A

Hard Cyclorama Stage & Broadcast Studio

  • 31' x 83' (2,573 sq.ft.)
  • 21’ height to grid (movable pods)
  • 400 AMP (3 phase) available power
  • Fully Air-Conditioned
  • Suitable for events, set construction for film & TV, & larger live audience shows
  • Up to eight simultaneous cameras in Standard and High Definition formats

Studio 3B

Customizable Broadcast Studio

  • Just right for Talk Shows & small studio audience shows
  • 21’ x 42’ sq.ft. (882 sq. ft.)
  • 10' height to grid
  • 100 AMP available power
  • Fully Air-Conditioned

SoundView Broadcasting


36-01 37th Ave, Long Island City, NY, United States

soundviewtech.com

(718) 937-8400

CONTACT US

Address:
36-01 37th Ave
Long Island City, NY 11101

  • Tel: (718) 937-8400
  • Fax: (718) 392-2112
  • Email: info@svbllc.com

Sarmad Zafar, COO

szafar@soundviewtech.com

FOLLOW US

JOIN US

Careers

WORK WITH US

Visit our facilities and speak to a representative about your channel launch or next media/broadcast project.

Copyright 2014 Soundview Services. All rights reserved. Terms and Services